25. 3X1
Centro cultural en El Escorial
EL ESCORIAL (MADRID). Concurso 2015. Mención especial.

TRESPORUNO

La propuesta da repuesta al programa funcional del centro cultural para el Sector 1, “Ensanche” de El escorial +, se compromete con la necesidad de crear ciudad en un entorno de nueva construcción organizando sus volúmenes alrededor de una plaza ++, pone en valor con su formalización volumétrica la memoria histórica y el paisaje del municipio +++.

Ubicado en una trama urbana de nueva ejecución el Centro Cultural se compromete con la creación de ciudad. El espacio libre que se conforma entre sus diferentes volúmenes crea una plaza pública abierta por su frente norte al ensanche, el monte Abantos y el monasterio de San Lorenzo.

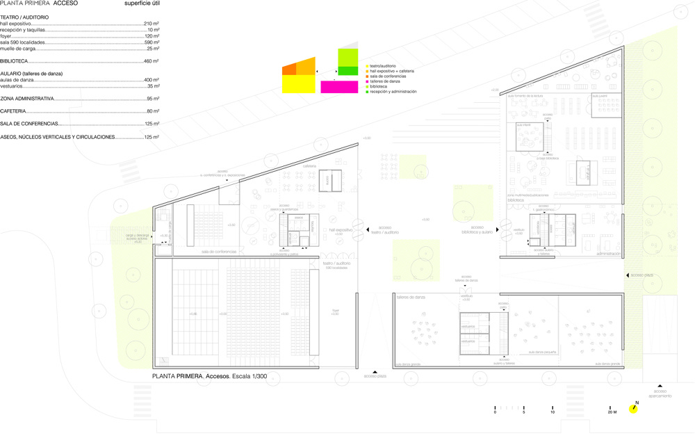
El volumen necesario para albergar el programa se fragmenta en tres menores cuyos usos principales son auditorio, biblioteca y aulario. Adecuando la escala de cada uno de ellos a la del tejido urbano del municipio de El Escorial. Estos volúmenes independientes lo son sólo en apariencia. Comparten un basamento común en planta baja y aparcamiento que simplifica su funcionamiento y uso posterior. Este compromiso urbano de la propuesta y su formalización en la plaza del Ensanche, dota al Centro Cultural de una posición de centralidad como elemento catalizador de la actividad urbana, a priori imposible dada su posición extrema en el sector 1. La división del volumen en piezas menores sobre cota de calle, aumenta la permeabilidad de la parcela al transito libre de peatones mejorando su conexión y la de las parcelas contiguas con el resto del ensanche y del municipio.

Superponiendo el patrón de ocupación y el sólido generador obtenemos los tres volúmenes definitivos. La intersección de la forma de sierra, asociada por todos al símbolo de fábrica, con los cuerpos del auditorio, biblioteca y aulario genera un efecto de fuerte simbolismo en la formalización de las cubiertas, integrando en un único gesto a los tres cuerpos edificados, generando un movimiento en las líneas de cornisa de las fachadas que dialoga con el paisaje e insinúa con la dirección de sus cumbreras la posición del monasterio. Las piezas son horadadas por un sistema de patios que permite la correcta iluminación y ventilación del programa interno, posibilitando a su vez su uso como espacios lúdicos exteriores.

info

ESTADO: Concurso
LOCALIZACIÓN: El Escorial (Madrid)
AÑO: 2015
Scroll al inicio