30. RONDA
Estación de Autobuses y Biblioteca Municipal
RONDA. MÁLAGA. Concurso 2012.

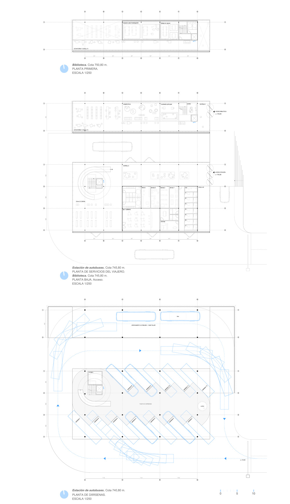
JUNTOS PERO NO REVUELTOS…

Una propuesta que nace de la necesidad de conciliar dos programas muy diferentes en una misma ubicación: con una “materia prima” tan diferente en escala e impacto como son el autobús y el libro; y con un usuario tan diferente en tiempo de estancia y nivel de estrés como el pasajero y el lector.

JUNTOS PERO NO REVUELTOS… pretende realizar una actuación unitaria pero, a la vez, que mantenga la independencia necesaria para el correcto funcionamiento de ambos programas. Un volumen horizontal, la estación de autobuses, y otro contiguo en posición vertical conteniendo la biblioteca.

La intervención intenta liberar la mayor superficie de la parcela posible, realizando una actuación compacta, que permita generar nuevos espacios públicos para la ciudad. La parcela queda liberada en su perímetro noroeste, formando un nuevo ámbito entorno al instituto Doctor Rodríguez Delgado, la nave multiusos para mayores y el antiguo museo del mueble rondeño. Un parque-cultural que permite la conexión a través de la parcela con las calles Fernando de los Ríos y la calle del Guadalcobacín, conexiones ambas con la Avenida de la Victoria. El talud natural, que forman la vía del tren y la parcela, acondicionado con arbolado que reduzca el impacto acústico, conforma un nuevo paseo, en el extremo sur de la parcela, paralelo a la vía del tren. Ampliamos de este modo la conexión de la parcela con el tejido urbano de Ronda, limitado si no, únicamente, a la calle Guadalcobacín y a la conexión, mediante un paso a nivel de ferrocarril, con el centro de la ciudad. .

info

ESTADO: Concurso
LOCALIZACIÓN: Ronda (Málaga)
AÑO: 2012
Scroll al inicio