10. CARRIONINA
Vivienda unifamiliar en La Carrionina
AVILÉS (ASTURIAS). 2012.

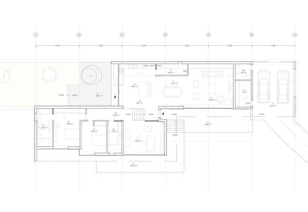
La propuesta surge de un esquema general de adaptación de la edificación a su entorno, en concreto a dos condicionantes principales de este: la pendiente del terreno y la orientación. La estrategia de implantación con respecto a ambos se basa en desarrollar dos bandas de aterrazamiento, perpendiculares a la máxima pendiente. De esta manera se consiguen dos grandes planos horizontales en los que desarrollar la edificación, separados por un metro y medio de altura, con un mínimo movimiento de tierras y de contenciones. Esto también proporciona un máximo de superficie de fachada orientada al Sur, capaz de aprovechar la luz directa y la energía pasiva del sol, algo muy positivo para optimizar las condiciones higrotérmicas en el clima Asturiano, minimizando así el gasto de energía.

El esquema compositivo derivado de esta estrategia se formaliza en dos bandas edificadas que se solapan y se unifican bajo una misma cubierta, de inclinación similar a la del terreno. En una de ellas, la más baja, se concentran las piezas privadas y en la otra las comunes, en la intersección de ambas se ubica la entrada y el eje principal de circulación. La bancada que contiene los espacios comunes se prolonga en el exterior del volumen edificado creando una secuencia salón-comedor-cocina-terraza. A su vez el desplazamiento entre las dos bandas provoca la aparición de los espacios exteriores vinculados a la vivienda a modo de terrazas, que cuando los ventanales proyectados en la zona “de día” están abiertos conforman un espacio continuo exterior-interior.

info

CLIENTE: Particular
ESTADO: Construido
LOCALIZACIÓN: Avilés (Asturias)
AÑO: 2012
SUPERFICIE: 271,20 m2
FOTOGRAFÍA: Adriana Martínez
ESTRUCTURA: Elías Martínez
Scroll al inicio